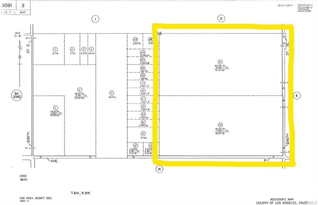
0 Corner of 240th St E and Avenue PPalmdale, CA 93591



Mortgage Calculator
Monthly Payment (Est.)
$182,496Prime Desert Land for Sale – Unmatched opportunity for investors and developers near the planned high desert corridor rail corridor from Palmdale to Victorville and on to Las Vegas. Unlock the potential of this expansive, prime desert property, located east of Palmdale in the heart of California’s high desert region. Spanning 160 acres, this large vacant lot offers unparalleled development opportunities in a soon to be evolving area, strategically positioned in the path of development near the future route of the high desert corridor of California's new high-speed rail system. This highly desirable location promises significant appreciation potential as the High Desert Corridor project will enhance connectivity and dramatically improve access to major cities, making this land an ideal choice for forward-thinking investors and developers. With the high-speed rail coming to the area, this property is poised to become a prime hub for commercial, residential and mixed-use development. Potential commercial development could include industrial parks and logistics hubs, taking advantage of the future transportation infrastructure. The rail connection will make this area an attractive location for businesses seeking easy access to major metropolitan areas. Residential projects may include large-scale residential developments with the added convenience of quick access to the high-speed rail for commuters and residents seeking proximity to both the desert and urban centers. And with its stunning desert landscape and the high-speed rail bringing increased visitors, this area could be an excellent location for resorts, RV parks or adventure tourism businesses looking to cater to travelers in transit. In addition, because the land offers abundant sunlight, this property would be ideal for solar energy projects, especially with the added benefit of being connected to growing urban areas by the rail system. Whether you’re looking to establish a thriving business, invest in residential development, or create a landmark tourism destination, this property offers the space, location, and growth potential to turn your vision into reality. Don't miss the opportunity to capitalize on this exceptional land along California's cutting-edge high-speed rail corridor.
| 12 months ago | Listing first seen on site | |
| 12 months ago | Listing updated with changes from the MLS® |
This information is for your personal, non-commercial use and may not be used for any purpose other than to identify prospective properties you may be interested in purchasing. The display of MLS data is usually deemed reliable but is NOT guaranteed accurate by the MLS. Buyers are responsible for verifying the accuracy of all information and should investigate the data themselves or retain appropriate professionals. Information from sources other than the Listing Agent may have been included in the MLS data. Unless otherwise specified in writing, the Broker/Agent has not and will not verify any information obtained from other sources. The Broker/Agent providing the information contained herein may or may not have been the Listing and/or Selling Agent.

Did you know? You can invite friends and family to your search. They can join your search, rate and discuss listings with you.